購入に関するお役立ち情報
「特売物件」ホライゾンレジデンス 1LDK
(Horizon Residences)
| 種別 | コンド(高級マンション) | ||
|---|---|---|---|
| 国 | マレーシア | エリア | クアレアルンプール |
| 開発会社 | Hap Seng Land | ||
| 所在地 | 420, Jln Tun Razak, 50400 Kuala Lumpur | ||
| 基本情報 | 総戸数335戸 (27階建て) | ||
| タイプ | 間取り | 参考価格(JP¥) | 参考価格 | 専有面積 |
|---|---|---|---|---|
| タイプA2 | 1LDK | 2,000万円 | RM 570,000 | 61m² |
「特売物件」ホライゾンレジデンス 1LDK
(Horizon Residences)
| 種別 | コンド(高級マンション) | ||
|---|---|---|---|
| 国 | マレーシア | エリア | クアレアルンプール |
| 開発会社 | Hap Seng Land | ||
| 所在地 | 420, Jln Tun Razak, 50400 Kuala Lumpur | ||
| 基本情報 | 総戸数335戸 (27階建て) | ||
| タイプ | 間取り | 参考価格(JP¥) | 参考価格 | 専有面積 |
|---|---|---|---|---|
| タイプA2 | 1LDK | 2,000万円 | RM 570,000 | 61m² |
物件写真
设施写真
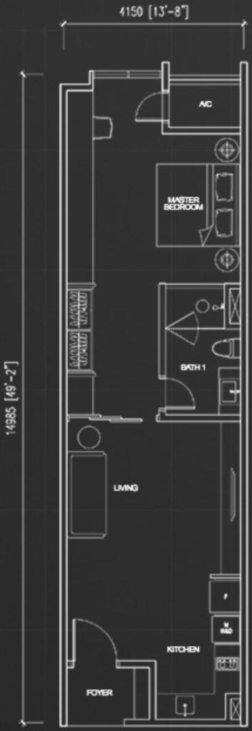
物件間取り
物件詳細
POINT
KLCCエリア最高なゴルフビュー!
| 交通情報 | MRTカジャン線&プトラジャヤ線「トゥン・ラザク・エクスチェンジ駅」徒歩7分 | ||
|---|---|---|---|
| 建物構造 | 鉄筋コンクリート | 築年月 | 2015 |
| 所在階数 | 15 | 建物階数 | 27 |
| ベランダ | 無し | 向き | 西 |
| 駐車場 | 一台 | 土地権利 | Free Hold(所有権) |
| 現状 | 販売用 | 想定利回り | - |
| 建物管理費 | RM 305.00 | 修繕積立金 | RM 40.15 |
| 備考 | お買徳! | 特記事項 | - |
| 情報更新日 | 2025-09-30 | 取引業態 | 専属 |
|
TOMOちゃんの お薦め | 特売物件、周辺の新築の半値以下。 | ||
|---|---|---|---|
| 設備 | 共用施設 | ||
|
|
||
| 周辺環境 | 学校エリア | ||
|
|
| 交通情報 | MRTカジャン線&プトラジャヤ線「トゥン・ラザク・エクスチェンジ駅」徒歩7分 | ||
|---|---|---|---|
| 建物構造 | 鉄筋コンクリート | 築年月 | 2015 |
| 所在階数 | 15 | 建物階数 | 27 |
| ベランダ | 無し | 向き | 西 |
| 駐車場 | 一台 | 土地権利 | Free Hold(所有権) |
| 現状 | 販売用 | 想定利回り | - |
| 建物管理費 | RM 305.00 | 修繕積立金 | RM 40.15 |
| 備考 | お買徳! | 特記事項 | - |
| 情報更新日 | 2025-09-30 | 取引業態 | 専属 |
| TOMOちゃんのお薦め | 特売物件、周辺の新築の半値以下。 | ||
|---|---|---|---|
| 設備 | 共用施設 | ||
|
|
||
| 周辺環境 | 学校エリア | ||
|
|
物件マップ
物件VIDEO
周辺エリア






